Продукция

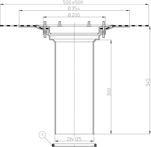
Надставной элемент с гидроизоляционным полимербитумным полотном 500 х 500 мм и уплотнительным резиновым кольцом, высотой 345 мм. Применяется для герметичного соединения с гидроизоляцией на основе битума, а также с кровельной воронкой на плоских утепленных кровлях при наличии пароизоляции, DN125

Технические данные:

Высота монтажа:
300 мм
Присоединительные размеры:
DN125
Срок службы:
не менее 50 лет
Вес брутто, кг:
2.8
Объем, м3:
0.057066625

Материал составных частей

Гидроизоляционное полотно:
500 х 500 мм
Листвоуловитель:
Полипропилен
Надставной элемент:
Полипропилен / Полимербитумное полотно

HL65H

HL01020D

HL350.2

Удлинитель d 145 мм для трапов, кровельных воронок и надставного элемента HL350.0 с дополнительным боковым отводом DN40, высотой 155 мм

HL350

Удлинитель Ø145 мм для трапов, кровельных воронок и надставного элемента HL350, высотой 155мм

HL160

Дренажный фланец для приёма потока воды с гидроизоляции на инверсионной кровле  Ø170 мм

HL175

Листвоуловитель из высококачественной стали

HL66

Надставной элемент DN145 с подрамниками из высококачественной стали 150 х 150 мм и решеткой из высококачественной стали 138 х 138 мм с двумя винтами. Общая высота 219 мм, высота подрамника - 15 мм.

HL66.1

Надставной элемент DN145 с подрамниками из высококачественной стали (V4A) 150 х 150 мм и решеткой из высококачественной стали (V4A) 138 х 138 мм с двумя винтами, с поверхностью, которая препятствует скольжению. Общая высота - 205 мм, высота подрамников - 15 мм.

HL66.9

Надставной элемент DN145 с подрамником из полипропилена 147 х 147 мм и решеткой из нержавеющей 138 х 138 мм. Общая высота - 90 мм, высота рам - 10 мм.

HL66P

Надставной элемент DN145 с монтажной консолью 206 х 206 мм из поливинилхлорида для соединения с напольным покрытием из ПВХ, с решеткой из нержавеющей стали 138 х 138 мм. Общая высота - 88 мм, высота рам - 2 мм.

HL062.1E

Листвоуловитель

HL062B.3E

Дренажное кольцо Ø150 мм

HL67

Надставной элемент DN145 с подрамником из высококачественной стали d 155 мм (V4A) и круглой решеткой d 145 мм. Общая высота - 150 мм, высота рам - 7 мм.

HL170

Плоский листвоуловитель для кровельных воронок серии HL62 и HL64

HL350.0

Надставной элемент Ø145 с профилированным фланцем, применяется для подхвата второго уровня гидроизоляции.
Подходит к кровельным воронкам серий HL62, HL64 и HL69.

HL350.1H

Надставной элемент Ø145 мм с гидроизоляционным полимербитумным полотном Ø500мм.
Применяется для подхвата второго уровня гидроизоляции, высотой монтажа 200мм

Сертификат соответствия на продукцию HL российского производства OOO "ХЛ-РУС" каталог 31/RUS

Сертификат соответствия на продукцию HL российского производства OOO "ХЛ-РУС" каталог 33/RUS

Санитарно-эпидемиологическое заключение на сифоны, трапы, сточные устройства HL

Технические параметры

Технические данные:

Высота монтажа:
300 мм
Присоединительные размеры:
DN125
Срок службы:
не менее 50 лет
Вес брутто, кг:
2.8
Объем, м3:
0.057066625

Материал составных частей

Гидроизоляционное полотно:
500 х 500 мм
Листвоуловитель:
Полипропилен
Надставной элемент:
Полипропилен / Полимербитумное полотно

Паспорт

HL65H

Составные части

HL01020D

Губчатая прокладка DN125

Доп. оборудование

HL350.2

Удлинитель d 145 мм для трапов, кровельных воронок и надставного элемента HL350.0 с дополнительным боковым отводом DN40, высотой 155 мм

HL350

Удлинитель Ø145 мм для трапов, кровельных воронок и надставного элемента HL350, высотой 155мм

HL160

Дренажный фланец для приёма потока воды с гидроизоляции на инверсионной кровле  Ø170 мм

HL175

Листвоуловитель из высококачественной стали

HL66

Надставной элемент DN145 с подрамниками из высококачественной стали 150 х 150 мм и решеткой из высококачественной стали 138 х 138 мм с двумя винтами. Общая высота 219 мм, высота подрамника - 15 мм.

HL66.1

Надставной элемент DN145 с подрамниками из высококачественной стали (V4A) 150 х 150 мм и решеткой из высококачественной стали (V4A) 138 х 138 мм с двумя винтами, с поверхностью, которая препятствует скольжению. Общая высота - 205 мм, высота подрамников - 15 мм.

HL66.9

Надставной элемент DN145 с подрамником из полипропилена 147 х 147 мм и решеткой из нержавеющей 138 х 138 мм. Общая высота - 90 мм, высота рам - 10 мм.

HL66P

Надставной элемент DN145 с монтажной консолью 206 х 206 мм из поливинилхлорида для соединения с напольным покрытием из ПВХ, с решеткой из нержавеющей стали 138 х 138 мм. Общая высота - 88 мм, высота рам - 2 мм.

HL062.1E

Листвоуловитель

HL062B.3E

Дренажное кольцо Ø150 мм

HL67

Надставной элемент DN145 с подрамником из высококачественной стали d 155 мм (V4A) и круглой решеткой d 145 мм. Общая высота - 150 мм, высота рам - 7 мм.

HL170

Плоский листвоуловитель для кровельных воронок серии HL62 и HL64

HL350.0

Надставной элемент Ø145 с профилированным фланцем, применяется для подхвата второго уровня гидроизоляции.
Подходит к кровельным воронкам серий HL62, HL64 и HL69.

HL350.1H

Надставной элемент Ø145 мм с гидроизоляционным полимербитумным полотном Ø500мм.
Применяется для подхвата второго уровня гидроизоляции, высотой монтажа 200мм

Сертификаты

Сертификат соответствия на продукцию HL российского производства OOO "ХЛ-РУС" каталог 31/RUS

от 17.11.2022 г. (действителен до 16.11.2025 г.)

Сертификат соответствия № РОСС.RU.НА39.H001225 от 17.11.2022 (действителен до 16.11.2025, изготовитель ООО "ХЛ-РУС")

Сертификат соответствия на продукцию HL российского производства OOO "ХЛ-РУС" каталог 33/RUS

от 05.03.2024 г. (действителен до 04.03.2027 г.)

Сертификат соответствия № РОСС RU.32748.04ЭП30.ОС16.00073 от 05.03.2024 (действителен до 04.03.2027, изготовитель ООО ХЛ-РУС)

Санитарно-эпидемиологическое заключение на сифоны, трапы, сточные устройства HL

от 15.12.2017 г. (действителен до  г.)

Экспертное заключение (по результатам санитарно-эпидемиологической экспертизы продукции) №2246г/2017 от 15.12.2017 (изготовитель HL Hutterer & Lechner GmbH)

У вас есть вопрос?
Вам нужна помощь?

Напишите, чем мы можем Вам помочь, и Вы получите полную техническую поддержку от наших специалистов!