Продукция

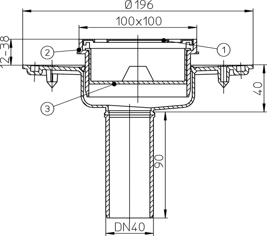
Трап для балконов и террас с подрамником высотой 12-38мм / 100х100мм, решеткой из нержавеющей стали 94х94 мм, с песколовкой, с вертикальным выпуском DN40. Строительная защита во время монтажа в комплекте.

Технические данные:

Высота монтажа:
52 мм
Присоединительные размеры:
DN40
Пропускная способность, л/с:
0,5
Срок службы:
не менее 50 лет
Вес брутто, кг:
0.441
Надставной элемент:
12-38 мм/100x100 мм
Объем, м3:
0.006513875
Решетка:
94x94 мм
Максимальная разрешенная нагрузка, т:
0.3

Материал составных частей

Корпус:
Полиэтилен
Материал решётки:
Нержавеющая сталь
Надставной элемент:
Полипропилен
Песколовка:
Полипропилен
Подрамник:
Полипропилен

HL080.1E

HL091.2E

HL091.3E

HL92K

монтажная заглушка для HL92

HL83.0

Гидроизоляционный комплект, состоящий из фланца из нержавеющей стали  196х114 мм с резиновым уплотнительным кольцом и комплекта саморезов

HL83

Гидроизоляционный комплект, состоящий из фланца из нержавеющей стали 196х114 мм с EPDM мембраной 400x400 мм, резинового уплотнительного кольца и комплекта саморезов

HL83.H

Гидроизоляционный комплект, состоящий из обжимной фланец из нержавеющей стали 196 х 114 мм с гидроизоляционным полимербитумным полотном 500 х 500 мм, резинового уплотнительного кольца и комплекта саморезов

HL83.M

Гидроизоляционный комплект, состоящий из фланца из нержавеющей стали 196 x 114 мм, резинового уплотнительного кольца, полотна из термопластичного эластомера 400 х 400 мм для наклеивания керамических покрытий на тонкий слой мастики или нанесения двухкомпонентной эпоксидной смолы и комплекта саморезов

HL83.P

Гидроизоляционный комплект для мембран ПВХ d 287 мм, включающий винты (6 шт.) и уплотнительное кольцо.

HL83.PP

Гидроизоляционный комплект для мембран из ПП (FPO) d 287мм, включающий винты (6 шт.) и уплотнительное кольцо.

HL82r

Комплект электроподогрева состоящий из саморегулирующегося кабеля Rayhem, самоклеющегося теплопроводного полотна, скотч-фольги 10м и пластикового зажима для фиксации кабеля. Мощность 18 Ватт, напряжение 230 Вольт.

HL320

Надставной элемент (удлинитель) для трапов HL92

Сертификат соответствия на продукцию HL, каталог 31/RUS

Сертификат соответствия на продукцию HL, каталог 33/RUS

Санитарно-эпидемиологическое заключение на сифоны, трапы, сточные устройства HL

Технические параметры

Технические данные:

Высота монтажа:
52 мм
Присоединительные размеры:
DN40
Пропускная способность, л/с:
0,5
Срок службы:
не менее 50 лет
Вес брутто, кг:
0.441
Надставной элемент:
12-38 мм/100x100 мм
Объем, м3:
0.006513875
Решетка:
94x94 мм
Максимальная разрешенная нагрузка, т:
0.3

Материал составных частей

Корпус:
Полиэтилен
Материал решётки:
Нержавеющая сталь
Надставной элемент:
Полипропилен
Песколовка:
Полипропилен
Подрамник:
Полипропилен

Составные части

HL080.1E

HL091.2E

HL091.3E

Песколовка для HL92

HL92K

Корпус трапа HL92

монтажная заглушка для HL92

Доп. оборудование

HL83.0

Гидроизоляционный комплект, состоящий из фланца из нержавеющей стали  196х114 мм с резиновым уплотнительным кольцом и комплекта саморезов

HL83

Гидроизоляционный комплект, состоящий из фланца из нержавеющей стали 196х114 мм с EPDM мембраной 400x400 мм, резинового уплотнительного кольца и комплекта саморезов

HL83.H

Гидроизоляционный комплект, состоящий из обжимной фланец из нержавеющей стали 196 х 114 мм с гидроизоляционным полимербитумным полотном 500 х 500 мм, резинового уплотнительного кольца и комплекта саморезов

HL83.M

Гидроизоляционный комплект, состоящий из фланца из нержавеющей стали 196 x 114 мм, резинового уплотнительного кольца, полотна из термопластичного эластомера 400 х 400 мм для наклеивания керамических покрытий на тонкий слой мастики или нанесения двухкомпонентной эпоксидной смолы и комплекта саморезов

HL83.P

Гидроизоляционный комплект для мембран ПВХ d 287 мм, включающий винты (6 шт.) и уплотнительное кольцо.

HL83.PP

Гидроизоляционный комплект для мембран из ПП (FPO) d 287мм, включающий винты (6 шт.) и уплотнительное кольцо.

HL82r

Комплект электроподогрева состоящий из саморегулирующегося кабеля Rayhem, самоклеющегося теплопроводного полотна, скотч-фольги 10м и пластикового зажима для фиксации кабеля. Мощность 18 Ватт, напряжение 230 Вольт.

HL320

Надставной элемент (удлинитель) для трапов HL92

Сертификаты

Сертификат соответствия на продукцию HL, каталог 31/RUS

от 17.11.2022 г. (действителен до 16.11.2025 г.)

Сертификат соответствия № РОСС АТ.НА39.Н01221 от 17.11.2022 (действителен до 16.11.2025, изготовитель HL Hutterer & Lechner GmbH)

Сертификат соответствия на продукцию HL, каталог 33/RUS

от 05.03.2024 г. (действителен до 04.03.2027 г.)

Сертификат соответствия № РОСС RU.32748.04ЭП30.ОС16.00072 от 05.03.2024 (действителен до 04.03.2027, изготовитель HL Hutterer & Lechner GmbH)

Санитарно-эпидемиологическое заключение на сифоны, трапы, сточные устройства HL

от 15.12.2017 г. (действителен до  г.)

Экспертное заключение (по результатам санитарно-эпидемиологической экспертизы продукции) №2246г/2017 от 15.12.2017 (изготовитель HL Hutterer & Lechner GmbH)

У вас есть вопрос?
Вам нужна помощь?

Напишите, чем мы можем Вам помочь, и Вы получите полную техническую поддержку от наших специалистов!