Продукция

Трап для внутренних помещений с круглой решеткой в металлическом подрамнике Ø 133мм, с "сухим" сифоном "Primus", с вертикальным выпуском

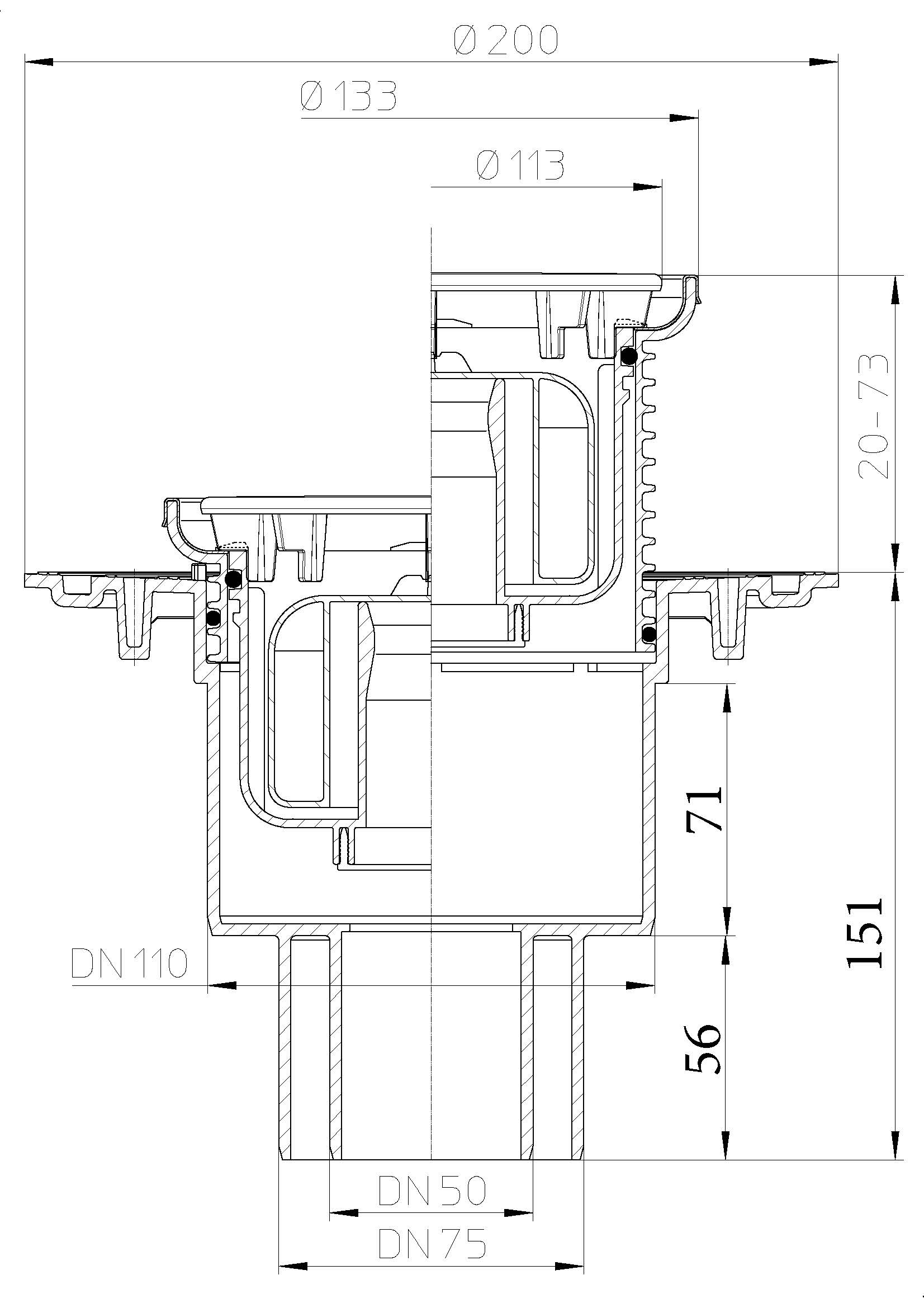
Технические данные:

Высота монтажа:
158 мм
Присоединительные размеры:
DN50/75/110
Пропускная способность, л/с:
0.50
Срок службы:
не менее 50 лет
Вес брутто, кг:
0.846
Надставной элемент:
20-78 мм/d 133 мм
Объем, м3:
0.010288125
Решетка:
d 112 мм
Максимальная разрешенная нагрузка, т:
0.3

Материал составных частей

Корпус:
Полипропилен
Материал решётки:
Нержавеющая сталь
Надставной элемент:
Полипропилен
Сифон:
Полипропилен

HL310NPrR

HL310K

HL01067D

HL0300.0EN

HL038N.3E

HL038N.4E

HL85N

Надставной элемент с профилированным фланцем для гидроизоляции, применяется для подхвата второго уровня гидроизоляции

HL85NC

Надставной элемент с резиновым уплотнительным кольцом, с консолью из полимербетона с регулировочными винтами и арматурной сеткой из конструкционной стали, с сеткой из пластика для наклеивания керамических покрытий на тонкий слой мастики

HL85NH

Надставной элемент с резиновым уплотнительным кольцом, с гидроизоляционным полимербитумным полотном d 420 мм для соединения с битумной гидроизоляцией

HL83.0

Гидроизоляционный комплект, состоящий из фланца из нержавеющей стали  196х114 мм с резиновым уплотнительным кольцом и комплекта саморезов

HL83

Гидроизоляционный комплект, состоящий из фланца из нержавеющей стали 196х114 мм с EPDM мембраной 400x400 мм, резинового уплотнительного кольца и комплекта саморезов

HL83.H

Гидроизоляционный комплект, состоящий из обжимной фланец из нержавеющей стали 196 х 114 мм с гидроизоляционным полимербитумным полотном 500 х 500 мм, резинового уплотнительного кольца и комплекта саморезов

HL83.M

Гидроизоляционный комплект, состоящий из фланца из нержавеющей стали 196 x 114 мм, резинового уплотнительного кольца, полотна из термопластичного эластомера 400 х 400 мм для наклеивания керамических покрытий на тонкий слой мастики или нанесения двухкомпонентной эпоксидной смолы и комплекта саморезов

HL83.P

Гидроизоляционный комплект для мембран ПВХ d 287 мм, включающий винты (6 шт.) и уплотнительное кольцо.

HL840

Противопожарная муфта для вертикальных трапов серии HL310 (DN50/75), состоящая из металлического корпуса с расширяющимся материалом и бугелем, с монтажной заглушкой. Предел огнестойкости EI 150

HL9/1

Переходник DN110 c поливинилхлорида (ПВХ), полипропилена (ПП) на чугун, свинец, сталь

HL9/50

Переходник DN50 с поливинилхлорида (ПВХ), полипропилена (ПП) на чугун, свинец, сталь

HL9/50/1

Переходник DN50/110 с поливинилхлорида (ПВХ), полипропилена (ПП) на чугун, свинец, сталь

HL9/7

Переходник DN75 с поливинилхлорида (ПВХ), полипропилена (ПП) на чугун, свинец, сталь

HL9/7/1

Переходник DN75/110 с поливинилхлорида (ПВХ), полипропилена (ПП) на чугун, свинец, сталь

HL340N

Удлинитель для трапов, высотой 100мм

HL310NR

Трап для внутренних помещений с круглой решеткой в металлическом подрамнике Ø 133 мм, высотой гидрозатвора 50 мм, с вертикальным выпуском DN50/75/110

Сертификат соответствия на продукцию HL российского производства OOO "ХЛ-РУС" каталог 31/RUS

Сертификат соответствия на продукцию HL российского производства OOO "ХЛ-РУС" каталог 33/RUS

Технические параметры

Технические данные:

Высота монтажа:
158 мм
Присоединительные размеры:
DN50/75/110
Пропускная способность, л/с:
0.50
Срок службы:
не менее 50 лет
Вес брутто, кг:
0.846
Надставной элемент:
20-78 мм/d 133 мм
Объем, м3:
0.010288125
Решетка:
d 112 мм
Максимальная разрешенная нагрузка, т:
0.3

Материал составных частей

Корпус:
Полипропилен
Материал решётки:
Нержавеющая сталь
Надставной элемент:
Полипропилен
Сифон:
Полипропилен

Паспорт

HL310NPrR

Составные части

HL310K

Корпус трапа для внутренних помещений DN50/75/110 вертикальный

HL01067D

HL0300.0EN

HL038N.3E

HL038N.4E

Доп. оборудование

HL85N

Надставной элемент с профилированным фланцем для гидроизоляции, применяется для подхвата второго уровня гидроизоляции

HL85NC

Надставной элемент с резиновым уплотнительным кольцом, с консолью из полимербетона с регулировочными винтами и арматурной сеткой из конструкционной стали, с сеткой из пластика для наклеивания керамических покрытий на тонкий слой мастики

HL85NH

Надставной элемент с резиновым уплотнительным кольцом, с гидроизоляционным полимербитумным полотном d 420 мм для соединения с битумной гидроизоляцией

HL83.0

Гидроизоляционный комплект, состоящий из фланца из нержавеющей стали  196х114 мм с резиновым уплотнительным кольцом и комплекта саморезов

HL83

Гидроизоляционный комплект, состоящий из фланца из нержавеющей стали 196х114 мм с EPDM мембраной 400x400 мм, резинового уплотнительного кольца и комплекта саморезов

HL83.H

Гидроизоляционный комплект, состоящий из обжимной фланец из нержавеющей стали 196 х 114 мм с гидроизоляционным полимербитумным полотном 500 х 500 мм, резинового уплотнительного кольца и комплекта саморезов

HL83.M

Гидроизоляционный комплект, состоящий из фланца из нержавеющей стали 196 x 114 мм, резинового уплотнительного кольца, полотна из термопластичного эластомера 400 х 400 мм для наклеивания керамических покрытий на тонкий слой мастики или нанесения двухкомпонентной эпоксидной смолы и комплекта саморезов

HL83.P

Гидроизоляционный комплект для мембран ПВХ d 287 мм, включающий винты (6 шт.) и уплотнительное кольцо.

HL840

Противопожарная муфта для вертикальных трапов серии HL310 (DN50/75), состоящая из металлического корпуса с расширяющимся материалом и бугелем, с монтажной заглушкой. Предел огнестойкости EI 150

HL9/1

Переходник DN110 c поливинилхлорида (ПВХ), полипропилена (ПП) на чугун, свинец, сталь

HL9/50

Переходник DN50 с поливинилхлорида (ПВХ), полипропилена (ПП) на чугун, свинец, сталь

HL9/50/1

Переходник DN50/110 с поливинилхлорида (ПВХ), полипропилена (ПП) на чугун, свинец, сталь

HL9/7

Переходник DN75 с поливинилхлорида (ПВХ), полипропилена (ПП) на чугун, свинец, сталь

HL9/7/1

Переходник DN75/110 с поливинилхлорида (ПВХ), полипропилена (ПП) на чугун, свинец, сталь

HL340N

Удлинитель для трапов, высотой 100мм

Альтернативные варианты

HL310NR

Трап для внутренних помещений с круглой решеткой в металлическом подрамнике Ø 133 мм, высотой гидрозатвора 50 мм, с вертикальным выпуском DN50/75/110

Сертификаты

Сертификат соответствия на продукцию HL российского производства OOO "ХЛ-РУС" каталог 31/RUS

от 17.11.2022 г. (действителен до 16.11.2025 г.)

Сертификат соответствия № РОСС.RU.НА39.H001225 от 17.11.2022 (действителен до 16.11.2025, изготовитель ООО "ХЛ-РУС")

Сертификат соответствия на продукцию HL российского производства OOO "ХЛ-РУС" каталог 33/RUS

от 05.03.2024 г. (действителен до 04.03.2027 г.)

Сертификат соответствия № РОСС RU.32748.04ЭП30.ОС16.00073 от 05.03.2024 (действителен до 04.03.2027, изготовитель ООО ХЛ-РУС)

У вас есть вопрос?
Вам нужна помощь?

Напишите, чем мы можем Вам помочь, и Вы получите полную техническую поддержку от наших специалистов!