Продукция

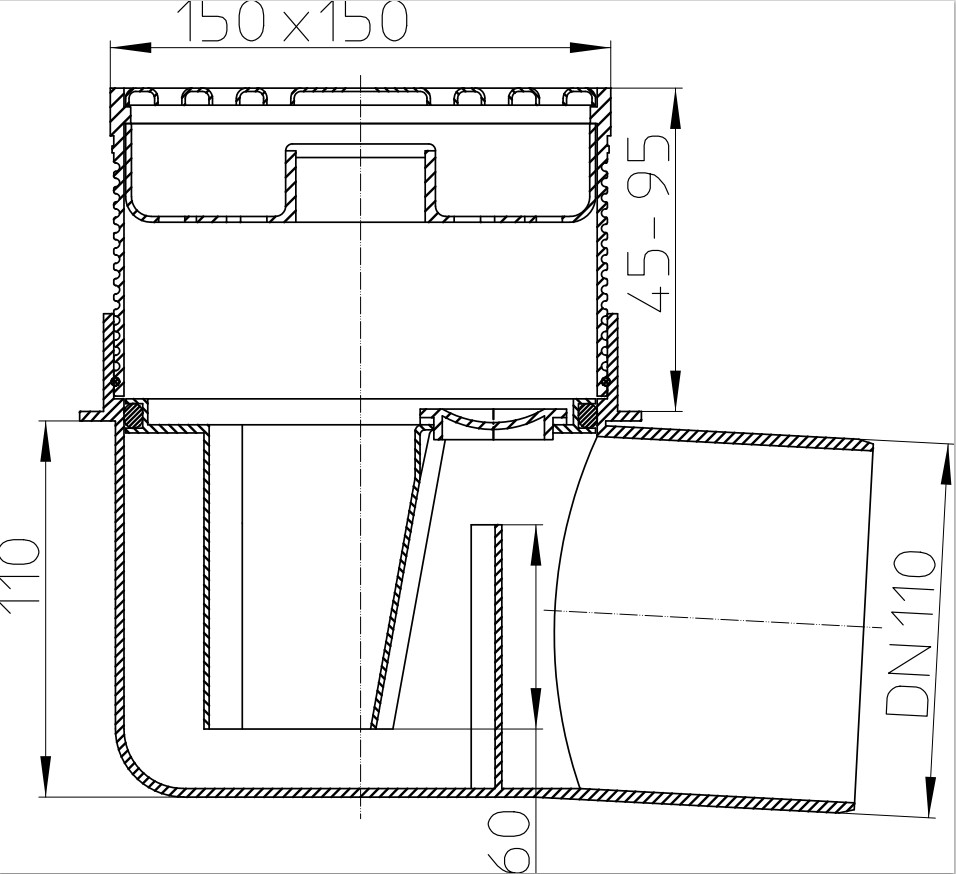
Трап с решеткой из нержавеющей стали 138х138 в подрамнике 148х148, с сеткой для улавливания мусора, с высотой гидрозатвора 60мм, без "тарелки" для подхвата гидроизоляции, с горизонтальным выпуском DN110.

Технические данные:

Высота монтажа:
170 мм
Присоединительные размеры:
DN110
Пропускная способность, л/с:
1.67
Срок службы:
не менее 50 лет
Вес брутто, кг:
1.07
Надставной элемент:
19-65 мм/147x147 мм
Объем, м3:
0.008640
Решетка:
138x138 мм
Максимальная разрешенная нагрузка, т:
0.3

Материал составных частей

Грязеуловитель:
Полипропилен
Корпус:
Полипропилен
Материал решётки:
Нержавеющая сталь
Надставной элемент:
Полипропилен
Подрамник:
Полипропилен

HL72N

HL066.4E

HL0317.1E

HL062B.2E

HL72K

HL0317.5E

HL9/1

Переходник DN110 c поливинилхлорида (ПВХ), полипропилена (ПП) на чугун, свинец, сталь

HL72N/7

Трап для внутренних помещений с решёткой из нержавеющей стали 138х138мм в подрамнике 148*148 мм, с сеткой для улавливания мусора, высотой гидрозатвора 60мм, без "тарелки" для подхвата гидроизоляции, с горизонтальным выпуском DN75

HL72

Трап с решёткой 138*138 мм в подрамнике 148*148 мм, с сеткой для улавливания мусора, высотой гидрозатвора 60мм, без "тарелки" для подхвата гидроизоляции, с горизонтальным выпуском DN110

Сертификат соответствия на продукцию HL, каталог 31/RUS

Сертификат соответствия на продукцию HL, каталог 33/RUS

Санитарно-эпидемиологическое заключение на сифоны, трапы, сточные устройства HL

Технические параметры

Технические данные:

Высота монтажа:
170 мм
Присоединительные размеры:
DN110
Пропускная способность, л/с:
1.67
Срок службы:
не менее 50 лет
Вес брутто, кг:
1.07
Надставной элемент:
19-65 мм/147x147 мм
Объем, м3:
0.008640
Решетка:
138x138 мм
Максимальная разрешенная нагрузка, т:
0.3

Материал составных частей

Грязеуловитель:
Полипропилен
Корпус:
Полипропилен
Материал решётки:
Нержавеющая сталь
Надставной элемент:
Полипропилен
Подрамник:
Полипропилен

Паспорт

HL72N

Составные части

HL066.4E

HL0317.1E

Решетка из нержавеющей стали 138*138 мм

HL062B.2E

Надставной элемент из полипропилена Ø 145 мм

HL72K

Корпус

HL0317.5E

Доп. оборудование

HL9/1

Переходник DN110 c поливинилхлорида (ПВХ), полипропилена (ПП) на чугун, свинец, сталь

Альтернативные варианты

HL72N/7

Трап для внутренних помещений с решёткой из нержавеющей стали 138х138мм в подрамнике 148*148 мм, с сеткой для улавливания мусора, высотой гидрозатвора 60мм, без "тарелки" для подхвата гидроизоляции, с горизонтальным выпуском DN75

HL72

Трап с решёткой 138*138 мм в подрамнике 148*148 мм, с сеткой для улавливания мусора, высотой гидрозатвора 60мм, без "тарелки" для подхвата гидроизоляции, с горизонтальным выпуском DN110

Сертификаты

Сертификат соответствия на продукцию HL, каталог 31/RUS

от 17.11.2022 г. (действителен до 16.11.2025 г.)

Сертификат соответствия № РОСС АТ.НА39.Н01221 от 17.11.2022 (действителен до 16.11.2025, изготовитель HL Hutterer & Lechner GmbH)

Сертификат соответствия на продукцию HL, каталог 33/RUS

от 05.03.2024 г. (действителен до 04.03.2027 г.)

Сертификат соответствия № РОСС RU.32748.04ЭП30.ОС16.00072 от 05.03.2024 (действителен до 04.03.2027, изготовитель HL Hutterer & Lechner GmbH)

Санитарно-эпидемиологическое заключение на сифоны, трапы, сточные устройства HL

от 15.12.2017 г. (действителен до  г.)

Экспертное заключение (по результатам санитарно-эпидемиологической экспертизы продукции) №2246г/2017 от 15.12.2017 (изготовитель HL Hutterer & Lechner GmbH)

У вас есть вопрос?
Вам нужна помощь?

Напишите, чем мы можем Вам помочь, и Вы получите полную техническую поддержку от наших специалистов!